Game Room
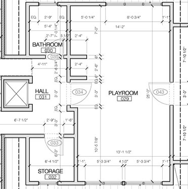
Three rooms really comprise this set of rooms. The Powder room, the storage room and the playroom.
The Powder Room has traditional wainscoting. The upper walls and ceiling are all American Clay. There is a pedistal sink, a Toto "comfort" toilet and a Toto Urinal with automatic flush.
The floor is tile and there is a casement window that you can leave open even if it's raining.
The storage room is a place for a second fridge, it contains an eletric sub-panel and, in a cubby hole built into the wall sits the computer that runs the house.
Between the storage room and pantry is the space where the elevator will go.
The gameroom itself is set up for watching a BIG television and has a built in kitchen with granite countertops, fridge and Amish cabinets. The built in bookcase is the secret entrance to Toblerone Alley